Mád | A zsidók hitéletét szolgáló épületekről
A zsinagóga
A Mádra települt zsidók a 18. század végén, a történeti városközpont északi részén emelték a hitéletüket szolgáló közösségi épületeket. Ez a terület a Fő utca (a mai Rákóczi út) és a Derék utca (mai Táncsics utca) közötti meredek domboldal. Magát a zsinagógát a legmagasabban és egyszersmind a Fő utcától legtávolabb fekvő telken építették fel 1795-ben. Ezt az időpontot a déli főbejárat díszes kőkeretének szemöldökébe vésett évszám rögzíti. A belső dekoráció csak évek múltán vált teljessé. A restaurálás során napvilágra került héber feliratokat megfejtő Komoróczy Géza szerint a kézmosó és az adománygyűjtő kőpersely 1798-ban lett készen. Ez lehetett a használatbavétel dátuma. A tóraszekrény feletti íves párkány feliratán viszont azt örökítették meg, hogy ez a szellemi és művészi értelemben is fontos építészeti elem Avraham Zeitelbaum és felesége adományából 1811-ben nyerte el végleges formáját.
Aligha véletlen, hogy a „zsidó templomot” a Fő utcától távol építették fel. Jó negyedszázaddal később, 1825-ben a református közösség is ide, a centrum északi szélére szorult, amikor felépítette saját késő barokk templomát. Templomépítési jogot ugyanis a protestáns felekezetek csak II. József türelmi rendeletével nyertek, ennek telepítésekor tehát ők is későn jöttek voltak, akárcsak a zsidók. A katolicizmus 18. századi erőszakos térhódítása – az ellenreformáció – amúgy az ország más településein is gyakran egymás mellé kényszerítette a protestáns és az izraelita közösségeket.
Az első, 1784-es és a második, 1857-es katonai felmérésen az épületek egyenkénti azonosítása lehetetlen. Ami felismerhető, az akkor lakott terület kiterjedése és az utcák hálózata. Így történeti elemzésünk óhatatlanul az 1867. évi kataszteri felmérésen alapul. A zsinagógát – helyrajzi szám nélkül – a 630-as házszám alatt a Mádi Zsidó Község tulajdonaként tartották nyilván. Az 1795-ben emelt késő barokk épület az egyik legrégebbi zsinagóga Magyarországon. Mádon viszonylag épségben fennmaradtak a szakrális tér 18. század végi épített elemei, a tóraszekrény gazdagon díszített környezete a maga kiemelt padozatával és kőkorlátjával, a centrálisan elhelyezett bíma és a hazai anyagban ritkaságnak számító stukkó imatáblák. Az oldalfalakat és a mennyezeti boltmezőket szinte szőnyegszerűen borító későbbi díszítőfestés már több kárt szenvedett. Annyi részlet viszont fennmaradt, ami elegendő volt a hajdan egységes látvány hiteles rekonstrukciójához.
A mádi zsinagóga archaikus elrendezésű: nagytermében a térközépen álló négy oszlop hordozza a kilencosztatos boltozatot, s fogja közre a bímát, a tóra felolvasására szolgáló emelvényt. A bíma központi elhelyezése tehát az épület szerkezetének meghatározója. Ezt az épülettípust a lengyel–litván területeken alkalmazták először a 16. század második felében, s valamivel később, nagyon nagy közösségek zsinagógáinál, Lembergben, Przemyślben, Vilnában és másutt. Kicsinyített, a mádihoz hasonló méretű formában a morvaországi Nikolsburgban (ma: Mikulov, CZ) építettek ilyet a 18. század utolsó és a 19. század első évtizedeiben. A régi Magyarországon nem kevesebb, mint 17 ilyen zsinagógát számoltak meg szorgos kutatók, amelyek közül mára már kevés áll. Szlovákiában Bártfán és Hunfalván, Magyarországon pedig Mádon, Bonyhádon és Apostagon. Közülük a mádi maradt fenn a legteljesebben. A nagyteremtől nyugatra lévő épületrész kétszintes.
A földszinten van a kézmosóval és persellyel ékes előtér, s egy kisebb szoba, amely talán téli imateremként szolgált, fölötte pedig a külső bejáratú, a nők imahelyéül szolgáló karzat. Ez először a mainál valamivel szűkebb formában épült fel. A nagyterem eredeti épített-faragott vagy fémből kialakított részletein túl az eredeti színhatásról is van fogalmunk: kezdetben csak a festett-faragott kövekkel ékes tóraszekrény köré festettek díszes függönyt, az imaterem többi fala fehér volt, a mennyezet pedig kék, kicsiny aranyszínű csillagokkal. Hat-hét évtizeddel később, amikor országszerte mór stílusban épültek a zsinagógák, a mádiak is szegényesnek vélték a maguk épületét. Akkor került a nagyterem oldalfalaira a mór stílusú, sokszínű falfestés.
Az izraelita közösség másfél évszázadig békében fenntartotta és használta az épületet.
Az ország középső és nyugati területein még javában tartottak a harcok, amikor az első 7 zsidó fiatalember visszatért Mádra, 1946-ban már közel 40-en voltak. A következő évben újraalapították a hitközséget és rabbit választottak.
Egyik első feladatuk volt, hogy kitakarítsák és használatba vegyék őseik templomát. A visszaemlékezések és a néhány akkoriban készített fénykép azt bizonyítják, hogy maga az épület kevés károsodást szenvedett. Csupán a tóraszekrény előtti pódiumot túrták fel értelmetlenül a „zsidók kincseire” ácsingózó helybeliek. A darabokra tört lépcsőt és kőkorlátot Szakál Ernő, a műemléki hivatal kitűnő restaurátora 1948-ban még szárazon összerakta, de később újra ledöntötték. A zsinagógaépület helyreállításra akkor nem volt lehetőség.
Ami viszont a bútorokat és szakrális felszerelési tárgyakat illeti: a gazdátlan épületből minden mozdítható érték eltűnt. Nyoma veszett a tóratekercseknek és szokásos díszes tartozékaiknak, a gyertyatartóknak, és az archív fényképeken még látható ingaórának. Leszerelték a csillárokat, az egyedi lámpatesteket, az örökmécsest, elvitték a hímzett textíliákat, és letépték a tóraszekrény cifra ajtaját.
Szerencsen, a Zempléni Múzeumban egy itteni tóratekercs kisebb töredékét őrzik. Ugyanitt vettek leltárba egy giccses festményt, amelynek peremén héber írásjelek sejlenek fel az amatőr pingálmány alól. Kísérteties példája ez egy szent irat anyagának újrahasznosítására.
Néhány éven belül bebizonyosodott, hogy Mádon sincs esélye a régi életforma visszaállításának, az idősek halálával, a fiatalabbak elvándorlásával a hitközség végérvényesen megszűnt. A zsinagóga és a rabbiház az 1950-es évek elején mint „elhagyott ingatlan” került a Magyar Állam tulajdonába.
Tagadhatatlan építészeti értékeit felismerve 1953-ban a zsinagógát műemléknek nyilvánították. Ez a tiszteletre méltó aktus persze nem jelentette azt, hogy a műemlék karbantartásáról bárki is gondoskodott volna. Az 1970-es évek végére a tetőzet gyakorlatilag eltűnt, a barokk oromfal és a boltozott téglafödém részben leszakadt, a falakon aggasztó szerkezeti repedések jelentkeztek. Ekkor született elhatározás először a műemlék gyakorlati megmentésére.

Kézmosó az előcsarnokban, melynek felirata is előkerült | A persely talált és restaurált állapotában
Az akkori elképzelések szerint idekerült volna a település könyvtára. A terveket egy korán eltávozott fiatal építész: Walsa Márta készítette, elképzeléseit inkább az új rendeltetésnek, mint a hiteles helyreállítás követelményeinek alárendelve. Akkoriban, 1980-ban mások sem látszottak felismerni – még szakmai körökben sem – egy 18–19. századi zsinagógaenteriőr megőrzésének fontosságát.
Az élet úgy hozta, hogy a megkezdett munkálatok rövidesen megszakadtak. Elkészült a teherhordó falak és a boltozatok megerősítése, új tetőszerkezet és tetőfedés és helyreállították a homlokzatokat. Egyetlen új elem készült: az előcsarnokból a női karzatra vezető vasbeton csigalépcső, melyet évtizedek múltán kénytelenek voltunk elbontani.
Valójában tehát egy ún. szerkezet-helyreállításra került sor, ami a műemlék fennmaradását további két évtizedre úgy-ahogy biztosította.
Ma már megmagyarázhatatlan módon a tervezés és kivitelezés fázisait nem előzte meg építészettörténeti kutatás, és a kiinduló állapotról fényképeket sem készítettek. Ami még rosszabb: a hirtelen félbehagyott felújítás utolsó lépéseként a belső falfelületek nagy részén leverték az amúgy jó megtartású eredeti vakolatot a többrétegű falfestés összefüggő maradványaival.
Dr. Román András elszántságának és kitűnő szakmai kapcsolatainak volt köszönhető, hogy 2000-ben végre megkezdődött a zsinagóga valódi helyreállítása. A projektet a New York-i székhelyű WMF (Világ Műemléki Alap) anyagi támogatásával sikerült beindítani, a költségek javarészét végül a Magyar Állam fedezte.
A tetőzet szükséges javítása mellett ismét sor került a teherhordó szerkezetek megerősítésére. Az épület 20 évvel korábban kialakított külső megjelenésén csak egy ponton, a keleti oromfalon változtattunk. Itt a padlásteret megvilágító körablak kibontására és a régi ábrázolásokból ismert stukkódíszítmények rekonstrukciójára került sor.
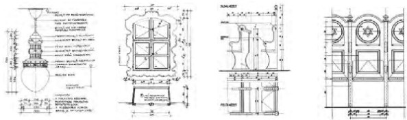
A tényleges szakmai kihívást a belső tér minél hitelesebb felújítása jelentette. Az előcsarnokban restauráltuk a rituális kézmosót és az ugyancsak díszesen faragott kőperselyt. Ezek felett feltártuk és rögzítettük a különböző korokból származó héber feliratokat. Az imaterem legfontosabb elemei: a tóraszekrény környezete, a bíma és a három imatábla szintén helyreállítható állapotban voltak. Hosszabb szakmai viták előzték meg a további döntéseket, nevezetesen azt, hogy a 20. század második felében javarészt elpusztult belső felületekből mit és hogyan idézzünk fel. Az oldalfalakon csupán néhány kisebb foltban meghagyott eredeti vakolt és festett felületek elegendőnek bizonyultak ahhoz, hogy – néhány régi fénykép segítségével – a 19. század végi dekoráció reprodukálható legyen. A restaurátorok feladata könnyebb volt a 9 mennyezeti boltmezőben, ahol a díszes mustra páronként ismétlődött.
A padlóburkolat esetében a járófelületen a helyi kőből készült, kopott kőlapok megtartását határoztuk el. Az egykori padsorok alatti feltöltésben megtaláltuk az eredeti téglaburkolat nyomait, amelynek rekonstrukciójára végül sor került.
A helyreállítás szakmai szempontból izgalmas része volt a hiányzó belső bútorozás visszaállítása: megtervezni és legyártani a beépített és mobilbútorzatot a szokásos rituális tartozékokkal és a világítótestekkel. A bíma felett függő lámpát, a finoman faragott faliszekrénykét és a padok díszítését az archív fényképek alapján rekonstruáltuk.
Benkő Ágnes, Wirth Péter: Ami megmaradt… Hegyaljai zsidó házak
Szaklektor: Dávid Ferenc
Terc Szakkönyvkiadó, 2015
A kötet könyvárusi forgalomba nem kerül. Kizárólagos terjesztője a MAZSIKE











Posted on 2016.04.26. Szerző: olvassbele
0